Paket Gambar IMB Desain Penambahan Lantai Ruko
Selamat pagi pak/ibu..
untuk pengurusan imb ruko penambahan lantai dari 2 ke 3lantai diperlu apa saja ya.. untuk jasa desainnya biayanya kira2 berapa rupiah semua..
Mohon infonya..
Iya bisa pak. Untuk biaya desain 2d 250rb/lbr a3
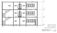
Untuk gambar IMB yang dibutuhkan adalah :
1. denah lantai 1-3
2. tampak 4 sisi bangunan ruko
3. potongan bangunan melintang dan membujur
4. rencana atap
5. rencana pembalokan
6. rencana sanitasi dan listrik
jadi total biaya 1.5juta.
Kami Arusha Desain melayani jasa pembuatan desain paket imb ruko, gudang, pabrik, kantor, Perumahan, Rumah Tinggal, Toko, Kantor, Sekolah, Pesantren, Madrasah, Masjid, Rumah Sakit, Klinik, dll. Kami sudah puluhan tahun berkecimpung di jasa pembuatan desain paket IMB. Bagi Anda yang tertarik dan ingin order desain, dijamin aman, nyaman dan cepat hasil designnya, setelah data lengkap terkirim dalam 2-3 hari sudah bisa lihat hasilnya. Desain akan kita buatkan dulu dalam resolusi rendah berwatermark untuk dilihat hasilnya, setelah transfer biaya designnya akan kita kirimkan hasil resolusi tingginya untuk direview lebih detail. Kita memberikan 2x revisi gratis.Kami selalu berkomitmen dalam mendesain untuk memberikan yang tebaik dan sesuai dengan permintaan klien. Kami Siap Memberikan masukan dan bantuan permasalahan desain via online. Dapatkan Desain Ruko Mewah, Trendy, Unik dan Apik dari Arusha Desain. Konsep Desain yang Berkelas dengan harga design yang murah berkualitas. Cepat, Tepat dan tanpa uang muka.
